Перевод чертежа на английский
Этот документ относится к группам: Технические документы на английский.
Сколько стоит перевод?
Скидки, ограничения и пояснения к тарифам:
- стоимость перевода чертежа рассчитывается по тарифу за слово
- если вы заказываете перевод в формате пояснения к чертежу, то доплачивать за оформление не нужно
- для перевода с сохранением оформления привлечем к работе специалистов по верстке по отдельному тарифу
- стоимость верстки перевода варьируется в зависимости от:
- размера чертежа (сверстать чертеж размером с лист А4 будет дешевле, чем размером А5)
- формата (для pdf без возможности редактирования стоимость будет выше, а для dwg с возможностью заменить текст – дешевле)
- количества элементов для замены (у вас может быть большой чертеж с 2-3 блоками для замены или скромная картинка с обилием блоков текста, второй вариант выйдет дороже)
- доступен перевод носителем английского языка, в том числе в паре с русскоязычным редактором, подробнее об услуге вы найдете на этой странице.
- минимальный заказ — 250 слов, но не менее 1000 ₽
Срок выполнения перевода чертежа
| Количество страниц* в документе | Срок выполнения перевода |
|---|---|
| до 10 страниц | 1-2 рабочих дня |
| более 10 страниц | от 3-х рабочих дней |
* — при условии, что на странице не более 200-250 слов
Отправьте документ на оценку и опишите задачу — мы сообщим, как быстро сможем сделать качественный перевод.
Кроме количества текста (страниц), срок перевода еще зависит от:
- загруженности офиса:
- когда заказов мало, срок перевода может быть сокращен;
- в периоды ажиотажного спроса срок может быть увеличен;
- тематики документа;
- сложности оформления (необходимости верстки перевода один в один).
Если предложенный срок не подойдет, в некоторых случаях возможен срочный перевод по повышенному тарифу.
Переведем чертеж, каким бы он ни был
- архитектурно-строительные чертежи;
- монтажно-технологические схемы;
- планы расположения оборудования;
- принципиальные электрические схемы;
- чертежи систем отопления, вентиляции и кондиционирования воздуха.
При работе с чертежами мы:
- проанализируем материал и тематику;
- подберем переводчика с соответствующим образованием и опытом, в том числе и носителей английского языка;
- проработаем терминологию и сокращения для корректного перевода на английский;
- уточним спорные моменты по переводу отдельных наименований;
- сверим все числа, номера и значения с исходником.
Как будет выглядеть перевод чертежа?
Нет ограничений на формат исходного чертежа. Примем фотографии, сканы, файлы формата .dwg и так далее. Предложим два варианта оформления на выбор:- Упрощенное подойдет, вам достаточно получить перевод текстового содержимого без сохранения оригинального оформления.
- Оформление один в один стоит выбрать, если перевод должен полностью повторять оригинал.
При упрощенном оформлении:
- Создадим документ с двумя колонками: в левой разместим текст на русском, в правой — перевод.
- Схемы и изображения чертежей упраздним, текст на них переведем.
Пример упрощенного оформления перевода чертежа на английский



- Оформили перевод в виде таблицы с двумя колонками.
- Структуру документа сохранили, термины идут друг за другом, как в оригинале.
- Элементы графики в перевод не перенесли.
При оформлении один в один с оригиналом:
- Сохраним или воссоздадим чертежи.
- Подберем похожий шрифт.
- Воссоздадим оригинальные таблицы.
- Постараемся сохранить расположение текста (иногда это сделать сложно, так как объем текста в английском и русском различается).
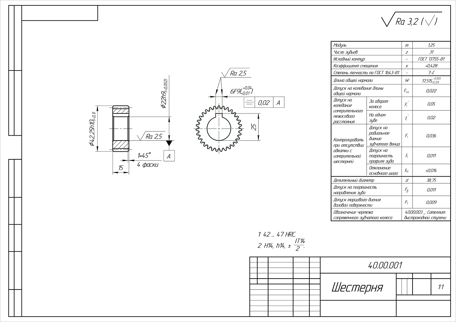
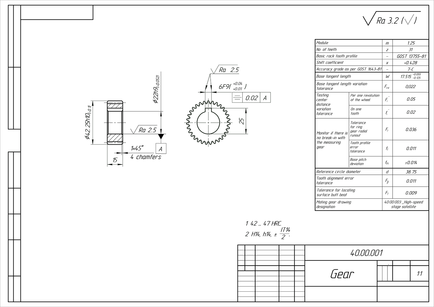
Пример перевода чертежа на английский в оформлении один в один


- Воссоздали исходные таблицы вместе с содержимым.
- Заменили текст на чертежах деталей на перевод.
- Подобрали похожий шрифт.
Мы разбираемся в вопросе перевода чертежей
- Подберем грамотного специалиста с дополнительным образованием или опытом перевода чертежей подобной тематики.
- Проанализируем исходник и составим таблицу соответствия терминов. При этом будем рады утвердить и скорректировать решения наших переводчиков.
- Перепроверим все точные данные дважды, особое внимание уделим числовым значениям.
- Подключим опытных верстальщиков для оформления перевода.
Ответы на часто задаваемые вопросы
Чертежи в AutoCAD, сможете прямо в них сделать перевод?
А можете на основе чертежа составить еще такие же и перевести их?
Быстрая обратная связь
Проконсультируем по почте, телефону, в Telegram или лично с 09:30 до 18:30 в рабочие дни. На онлайн-заявки отвечаем в течение часа.
Гибкие условия оплаты
Можете произвести оплату наличным и безналичным расчетом (банковской картой, через электронный кошелек и так далее). Для юридических лиц доступен безналичный расчет с закрывающими документами.
3 варианта получения перевода
Чаще всего получаем и отдаем перевод онлайн. Если он нужен в распечатанном виде, можете забрать в офисе Москвы или Санкт-Петербурга или заказать доставку по России и за рубеж. Используем СДЭК, но можете выбрать доставку другой курьерской службой.